


5月8日,济高·云璟中心入驻企业签约暨商务会客厅开放仪式成功举行。作为高新东区首个匹配“公园里的科技城市”定位的生态商务综合体,现场与中建四局北京分公司等14家知名企业达成战略合作,以标杆商办载体构筑产城融合新范式,为区域经济高质量发展注入强劲动能。


济南高新区生命科学城产业发展中心主任朱申乐表示,济高·云璟中心项目作为首个与“公园里的科技城市”相匹配的生态商务综合体,建设标准高、产品规划新、配套设施全,为高新东区商业开发、招商载体建设模式,提供了优质范例。济高控股集团党委副书记、总经理王赓表示,济高·云璟中心定位为“高新东区生活服务中心”,作为济高控股集团建设开发的又一商办载体标杆作品,项目将围绕圈层会客、政企接待、企业展馆、专业培训、医美颐养、装修样板六大生活场景,打造楼宇经济集群,助力高新东区筑巢引凤,赋能企业高质量发展。

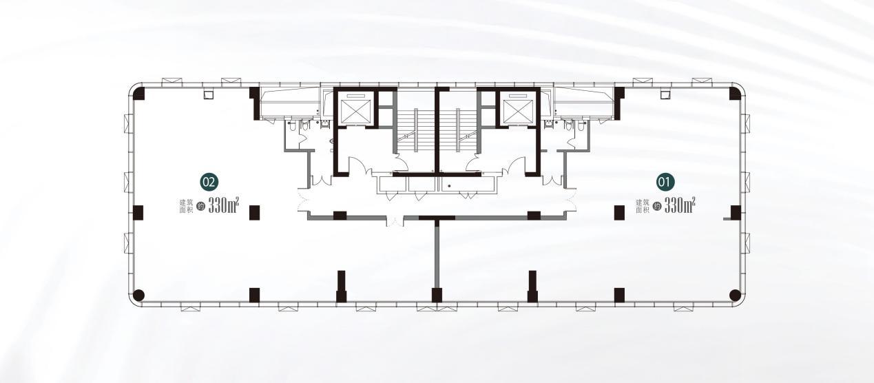
活动现场,济高·云璟中心与中建四局北京分公司等14家企业成功签约,此次战略签约标志着政企多方将协同深耕高新东区。作为承载招商引资的首个生态商务综合体,项目深度融合“自然生态+创新科技”的区域特色,推动生态资源与科技创新形成良性互哺。正式开放的商务会客厅首推330-660㎡高定私域空间,配置10.5米精装酒店式大堂、全玻璃幕墙及270°观景落地窗,集成政企服务、专业培训等多元功能。




(高定商务私域户型图)
项目同步规划建筑面积约429㎡的全景玻璃幕墙独栋商铺及30-570㎡燃气底商。其中独栋商铺采用双层院落设计,适配特色餐饮、商务私宴等业态;底商沿街设置,配备烟道及燃气设施,依托区域消费潜力打造复合型商业生态。

(独栋商铺户型图)

(燃气底商户型图)
济高·云璟中心通过构建优质发展平台,不仅为企业提供创新沃土,更将成为高新东区产业升级的强力引擎,加速高新技术企业与创新人才集聚,持续推动区域经济高质量发展。